Kinney Floor Plan Image
More Photos

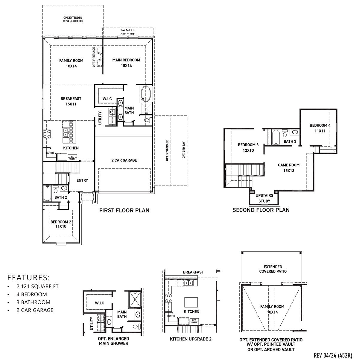
Kinney

Priced from $384,990
Sq Ft
2,121
Beds
4
Baths
3
Stories
2
Garage
2

The Kinney floor plan in the Portrait Series features 2,121 sqft, 4 bedrooms, 3 bathrooms, and a 2-car garage. This single-story floor plan offers a main bedroom bay option, covered patio option, kitchen upgrades, 3rd bay garage option, and vaulted family room options.

 


Download PDF
Floor Plan

Kinney

Floor Plan


Request More Information

Kinney Plan

Thank you for your interest in Newmark Homes. Please complete the form below for future updates and home releases. 


Loading form...

By filling out our contact form, you agree to the terms of our Privacy Policy.


Subscribe to our newsletter
Loading form...