Villa Messina Floor Plan Image
More Photos

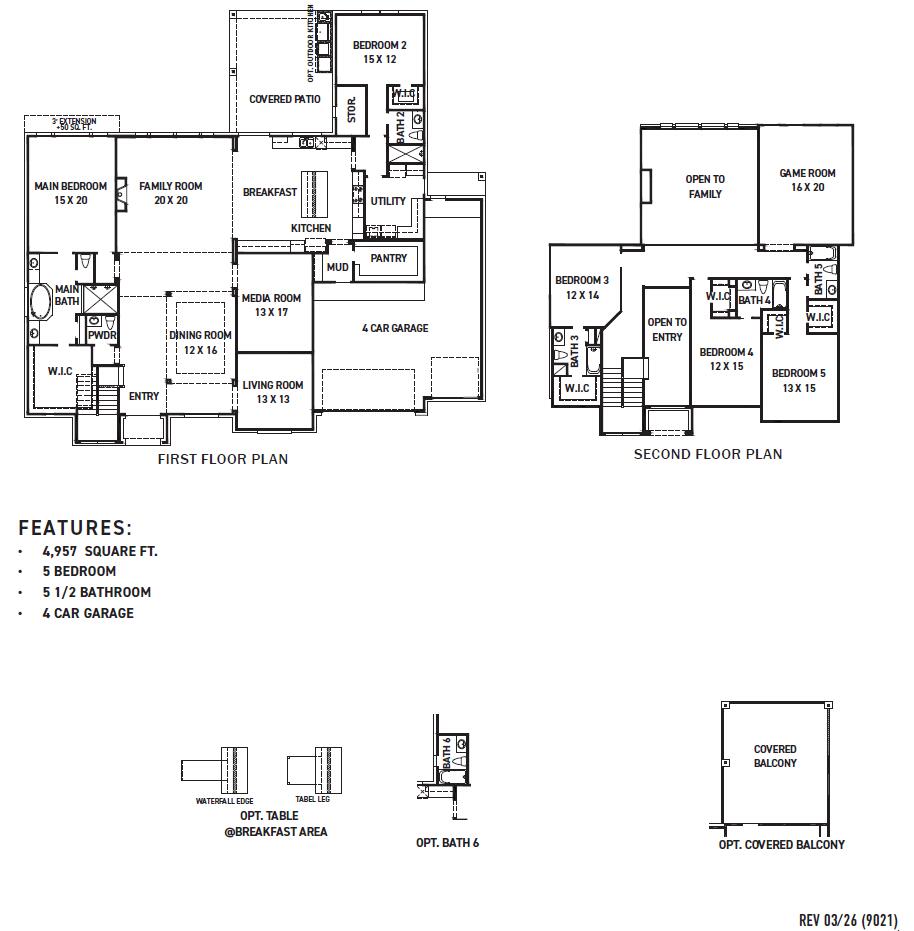
Villa Messina

Pricing Available Upon Request
Sq Ft
4,957
Beds
5
Baths
4.5
Stories
2
Garage
3

The Villa Messina is a breathtaking estate home designed with grandeur, comfort, and entertaining in mind. At the heart of the home, the soaring two-story family room is flooded with natural light and seamlessly connects to a gourmet kitchen featuring abundant cabinetry and expansive pr... READ MORE »ep space. Ideal for multi-generational living, the home offers both a luxurious primary suite and a secondary primary bedroom on the first floor. A first-floor media room and spacious gameroom provide endless opportunities for entertainment, while formal living and dining spaces add timeless elegance. The dramatic two-story primary closet, large covered outdoor living area, and carefully curated architectural details make the Villa Messina a true statement of luxury living.



Download PDF
Floor Plan

Villa Messina

Floor Plan


Request More Information

Villa Messina Plan

Thank you for your interest in Newmark Homes. Please complete the form below for future updates and home releases. 


Loading form...

By filling out our contact form, you agree to the terms of our Privacy Policy.


Subscribe to our newsletter
Loading form...