Montague Floor Plan Image
More Photos

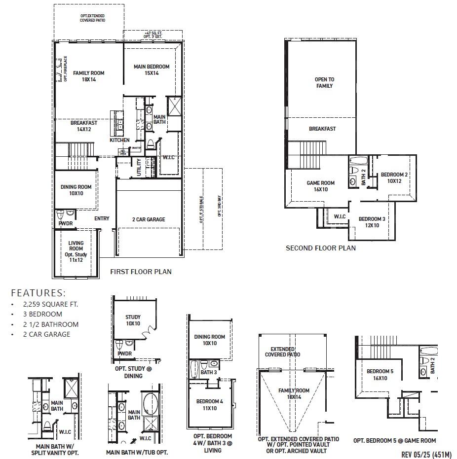
Montague

Priced from $445,990
Sq Ft
2,259
Beds
3
Baths
2.5
Stories
2
Garage
2

The Montague floor plan in the Portrait Series features 2,259 sqft, 3 bedrooms, 2.5 bathrooms, and a 2-car garage. This two-story floor plan offers study options, covered patio option, enlarged main shower option, 4 and 5 bedroom options, and 3rd bay options.



Download PDF
Floor Plan

Montague

Floor Plan


Plan Your Visit

Grange 45' Model
Newton Plan

Model NOW Open!

409 Dove Meadow Ln.
Katy, TX 77493
Get directions

MODEL HOME HOURS

Monday to Saturday: 10 a.m. - 6 p.m.
Sunday: 12 p.m. - 6 p.m.

Community Sales Manager

Request More Information

Montague Plan

Thank you for your interest in Newmark Homes. Please complete the form below for future updates and home releases. 


Loading form...

By filling out our contact form, you agree to the terms of our Privacy Policy.


Subscribe to our newsletter
Loading form...